Leased

25, 51 Grand Parade, Parrearra

$760.00

3 2 2

$760 P/W. OPEN PLAN, NORTH FACING with elevated park views, 3 bed, 2 bath, 2 car spaces, Large secure Storage, Resort style living with tranquility

$760 PER WEEK. OPEN PLAN, NORTH FACING with elevated park views, 3 bed, 2 bath, 2 car, with Large secure lockup, Resort style living located in a beautifully leafy and tranquil position "Island Quays"

Inspections by appointment, Please contact Jason Fox M 0488 20 34 34. Applications need to be via this listing page, see the 'APPLY' tab directly below the red "Get In Touch" tab.

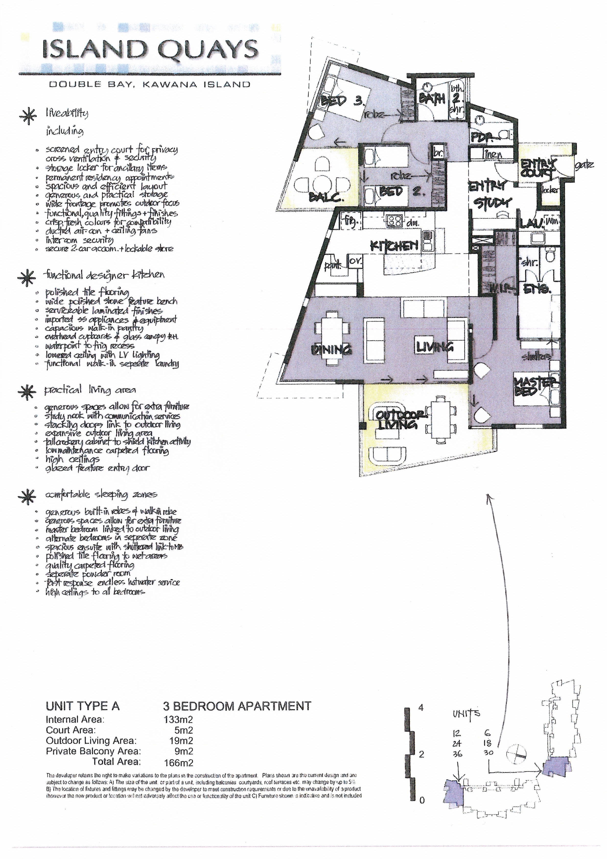
This terrific 2nd floor, large 3 bedroom, 2 bathroom apartment is located at the beautiful expansive landscaped garden complex of 'Island Quays' at Parrearra (also known as 'Kawana Island'). The apartment features an open plan kitchen with an adjacent living / lounge room which then flows out through the expansive floor to ceiling sliding glass panel doors to a main balcony / terrace which overlooks superb uninterrupted and never to be built park views and some water views.

At the entrance to the apartment has a large balcony, large enough to park 4 bikes. This balcony also has a storage cupboard large enough for a small kayak, or a few sets of golf clubs.

Upon entrance into the apartment there are large built-in Linen cupboards and a dedicated study nook.

The design layout separates the rear 2 bedrooms from the Master bedroom which faces the park and has access to the main terrace. The master bedroom has a large walk-in wardrobe and a private generous sized ensuite with double vanity, shower and toilet.

The rear bedrooms both have built-in wardrobes and their own balcony which is large enough for a table setting of 4 people with comfortable room to move. Three bedrooms are serviced by an adjacent bathroom with Shower / Bath and a separate adjacent toilet / powder room.

This apartment also features a good size laundry room with a large sink, Reverse cycle Air conditioning (Cooling and Heating) throughout with zoning enabling you to isolate areas not in use. There is a large security storage cage in the basement, directly adjacent to the 2 on title security side by side car spaces.

Enjoy this well positioned apartment with its elevated views of the adjacent park and bushland. The main terrace captures the warmth of the winter sun and in summer is sheltered with shade and receives the fresh cooling sea breezes.

Situated at the highly desired and beautifully landscaped garden complex of "Island Quays" residents could be mistaken they have a resort lifestyle, yet the complex is quiet, and its amenities are not crowded or noisy. Located in the desirable leafy and friendly suburb, with a nearby dog / companion park, fantastic pathways for walking, cycling or scooting and a short drive or ride to nearby cafes and restaurants, beaches, shopping, entertainment and sporting precincts and the Sunshine Coast University Hospital hub, and the tourist hotspot of Mooloolaba is only a 10-15 minute bike ride away across the nearby footbridge.

Apartment also features:
- Generous open plan kitchen living dining area.
- Lift access from basement/parking to level 2.
- Generous kitchen with a walk in Pantry.
- Large outdoor balcony / terrace adjoining open plan living/dining room.
- Large covered alfresco terrace overlooking the park and adjacent canal.
- Large basement lockup storage.
- Internal Laundry.
- Contemporary kitchen with plenty of storage and spacious marble bench tops.
- Gate Intercom to unit system.

The complex facilities and amenities:
- Resort style outdoor pool, lap pool and heated spa.
- Private jetty to moor your boat and direct ocean access.
- Floodlit full size tennis court.
- Outdoor undercover BBQ and entertaining area.
- Visitors care spaces within the complex.
- Pet / Companion friendly complex and suburb.
- Private residents and guest’s shower / powder adjacent to the pool area.
- Onsite management / caretaking.
- Security gated complex.
- Expansive appealing manicured gardens and lawns.

Features

Secure Parking in-Ground Pool Tennis court Balcony Outdoor entertainment area Outside Spa Broadband Internet Ready Study

Details

Available Leased
Address 25, 51 Grand Parade, Parrearra
Price $760.00
Property Type Rental
Property ID 103
Category Apartment

Share

Jason Fox photo

Jason Fox

0488 203 434

jason@coastpropertyco.com.au

Availability

Available now

Bond

$3,040